Написать нам в WhatsApp
Вологда, ул. Вологодская слобода, дом 4

А2 Жилой дом треугольный A-FRAME

4 565 500 ₽

Цена от

Строганнaя доска камерной сушки

Материал

2

Этажи

4

Комнаты

187 м2

Площадь

Срок изготовления

Заявка на ипотеку

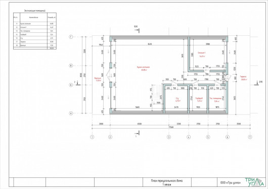
План 1 этажа

План 2 этажа

 

Гарантии

3 года на несущие конструкции

Фундамент

Свая железобетонная забивная 150х150х3000 мм

 

Качество силового каркаса

Силовой каркас из пиломатериала сухого строганного. Пиломатериал хвойных пород заготовленный на дисковой пилораме, сушка в камере нижнее перекрытие антисептировано, строительство согласно СНиП 31.105-2002

Обвязка фундамента

Опорный брус из сосны сечением 200х150; произведено антисептирование

 

Цокольное перекрытие

Шаг балок (не более 635) Сечение бруса 195х45; 145х45;
Обрешетка пола доска 145х20; гидроизоляция Изоспан RS;
Утепление PAROC eXtra толщиной 200 мм пароизоляция Изоспан А;
Воздушный зазор 50мм, плита ОСБ 18 мм

 

Межэтажное перекрытие

Шаг балок (не более 635) Сечение бруса 195х45; 145х45; 95х45.
Утепление PAROC eXtra толщиной 200мм;
пароизоляция Изоспан А;
Воздушный зазор 50 мм; ОСБ 18 мм

 

Наружные стены и фасад, утепление

Каркас сечения 145х45; 95х45 мм;
Воздушный зазор 50 мм, гидроизоляция Изоспан RS;
Утепление PAROC eXtra толщиной 250 мм , пароизоляция Изоспан А;

Наружная отделка стен: имитация бруса 20х146

Каркас крыши

Двухскатная из ферм сечением 195х45 с шагом 590 мм; стропил сечением 195х45; 145х45; 95х45.

 

Кровля

Внутренняя отделка стен: Воздушный зазор 50 мм, пароизоляция Изоспан А;
Утепление PAROC eXtra толщиной 250 мм;
Влаговетрозащита Изоспан RS; обрешотка доска 145х20;

Кровельное покрытие Металлочерепица Монтеррей 0.45

 

Внутренние стены

Внутренняя отделка стен:
Воздушный зазор 50 мм, пароизоляция Изоспан А;
Утепление PAROC eXtra толщиной 100 мм;
Влаговетрозащита  Изоспан RS;
Воздушный зазор 50 мм

Окна

ПВХ 60мм (размер и количество по проекту)

Двери

Входная дверь ПВХ (размер по проекту). Тыловая дверь металлическая утепленная (размер по проекту)

Срок строительства

90 рабочих дней

Требования к заказчику

Предоставление свободного доступа к электроэнергии, предоставление проживания, организация подъезда и разгрузки строительных материалов

Примечание

Внутренняя и наружная отделка без окраски

Дом-шалаш проект А2

Если хотите получить в распоряжение уютный, теплый, стильный и при этом недорогой дом-шалаш под ключ, проекты ООО «Бани Бочки Онлайн» к вашим услугам. Этот двухэтажный дом с 4 комнатами станет отличным вариантом для семей с детьми и без, отличаясь долговечностью, экологичностью, удобством планировки и демократичной ценой.

Проект дома-шалаша с чертежами доступен для изучения 24/7, любые дополнительные сведения можно уточнить по телефону +7 (921) 542-65-95. Для сравнения рекомендуем посмотреть другие варианты, например, проект дома А3.

 

 

 

 

Дополнительные услуги

Система отопления 

водяной теплый пол, установка радиаторов - 180000 рублей

Инженерные сети (скрытая проводка водопровода канализация) - 120000 рублей

Инженерные сети (скрытая электропроводка) - 246000 рублей

Чистовая отделка имитация бруса - 700000 рублей